// Woningbouw

Marissa Lake Village

Projecten

Over het project

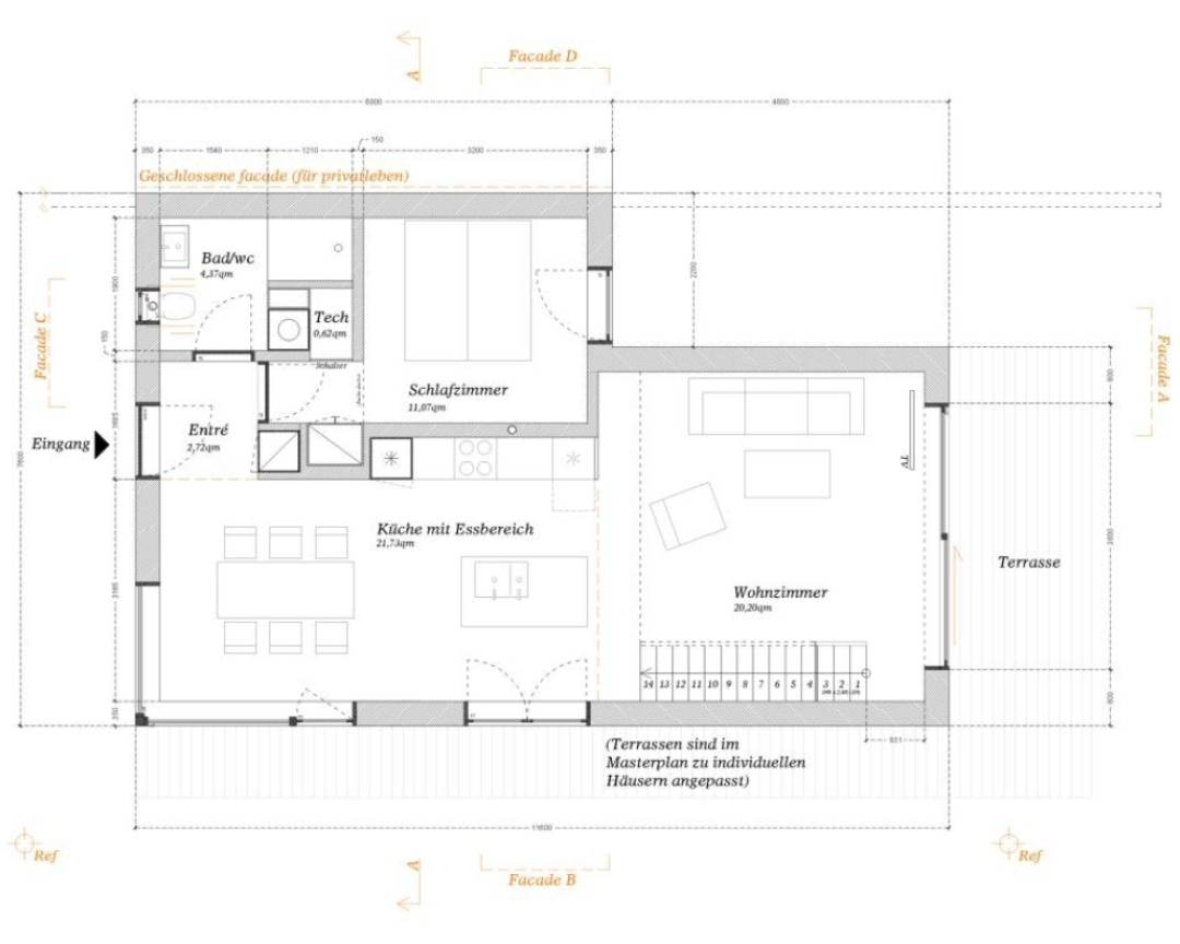
Marissa Lake Village wordt een resort met meer dan 500 huizen in Scandinavisch design. Vakantiehuizen van 69 tot 192 m² worden met gevoel voor de omringende natuur gebouwd en passen naadloos in het omliggende landschap. Elk huis beschikt over een eigen perceel – een groot deel daarvan met directe toegang tot het water. De 1e fase van het project, 50 vakantiewoningen voor particulieren, start. Wij hebben de opdracht ontvangen om de 25 grotere traditoneel gebouwde woningen te bouwen. De andere helft van de woningen is houtskeletbouw.

"Een fantastisch en uniek project!".  
- Han Teussink, projectleider -

Start bouw: 1e kwartaal 2026

Details

person
Opdrachtgever Walt und Welle Reeser Meer GmbH
location_on
Locatie Reeser Meer
request_quote
Aanneemsom € 7.500.000
help
Type project Woningbouw